vente appartement ROSNY-SOUS-BOIS

245 000€ - 64.65m² - ROSNY-SOUS-BOIS

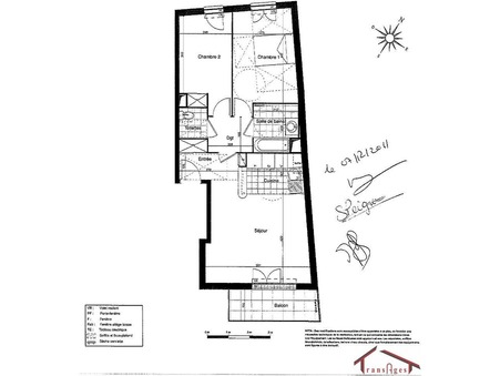
Appartement 3 pièces - 245 000€

Photos disponibles de ce bien.

Dans une rÃ?©sidence rÃ?©cente de qualitÃ?©, cet appartement 3 piÃ?¨ces en parfait Ã?©tat de 64.65 m² situÃ?© Ã? Rosny-sous-bois (93110) est au 4Ã?¨ Ã?©tage avec ascenseur.Il est composÃ?© de : EntrÃ?©e avec placard, Grand sÃ?©jour ouvert sur balcon, coin cuisine, un dÃ?©gagement, 2 chambres, une salle de bain et de wc. Le parquet massif apporte un confort au sol. Il dispose aussi d'un emplacement de parking en sous sol.Visite virtuelle Disponible sur demande. La prÃ?©sente annonce immobiliÃ?¨re a Ã?©tÃ?© rÃ?©digÃ?©e sous la responsabilitÃ?© Ã?©ditoriale de Jean-Marc GONTARD. Agent commercial mandataire en immobilier immatriculÃ?© au Registre SpÃ?©cial des Agents Commerciaux (RSAC) de CRETEIL sous le numÃ?©ro 494089758