vente appartement Livry-Gargan

315 000€ - 67.31m² - Livry-Gargan

Appartement 3 pièces - 315 000€

Photos disponibles de ce bien.

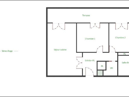
SIA Immobilier vous propose en exclusivitÃ?© : Un bel appartement F3 de 67m2 avec une grande terrasse de 28m2 (vue dÃ?©gagÃ?©e, sans vis-Ã? -vis). SituÃ?© au dernier Ã?©tage d'une rÃ?©sidence de standing situÃ?© au 23 Boulevard de la RÃ?©publique. Agencement : EntrÃ?©e avec dressing, grand salon avec cuisine ouverte Ã?©quipÃ?©e (accÃ?¨s terrasse), 2 chambres avec dressing (accÃ?¨s terrasse), salle d'eau moderne (douche Ã? l'italienne), WC sÃ?©parÃ?©. Atouts : Parquet point de Hongrie, climatisation, volets Ã?©lectriques. Cave et parking inclus. PossibilitÃ?© d'un 2Ã?¨me parking en sus. Points forts : RÃ?©sidence sÃ?©curisÃ?©e et bien entretenue (aucun travaux Ã? prÃ?©voir). Emplacement idÃ?©al : transports en commun Ã? proximitÃ?©. OpportunitÃ?© rare : Libre de toute occupation, aucun travaux Ã? prÃ?©voir (appartement et copropriÃ?©tÃ?©). Aucune procÃ?©dure en cours. Contactez-nous vite pour une visite ! Informations complÃ?©mentaires : Honoraires : Charge Vendeur - Net Vendeur : 310 000EUR - CopropriÃ?©tÃ?© de 38 lots Ã? usage d'habitation, de commerce et de bureaux- Charges GÃ?©nÃ?©rales de copropriÃ?©tÃ?© : 364 EUR / trimestrielles - Taxe fonciÃ?¨re : 1913 EUR - MilliÃ?¨me de copropriÃ?©tÃ?© (339/10 000) - Classement du logement en matiÃ?¨re de performance Ã?©nergÃ?©tique (DPE) : C 52 Kwh/m2/an d'Ã?©nergie finale- Montant estimÃ?© des dÃ?©penses annuelles d'Ã?©nergie pour un usage standard entre 710 et 1 1010 EUR, indexÃ?©s sur les annÃ?©es 2021 Ã? 2023 - Les informations sur les risques auxquels ce bien est exposÃ?© sont disponibles sur le site GÃ?©orisques : www.georisques.gouv.fr